48 Residences · 15 Unique Plans

Floor Plans

Studios through three-bedrooms, designed for how you actually live. Select affordable VLI units and Section 8 vouchers accepted.

17
Studios
425 – 526 sq ft
23
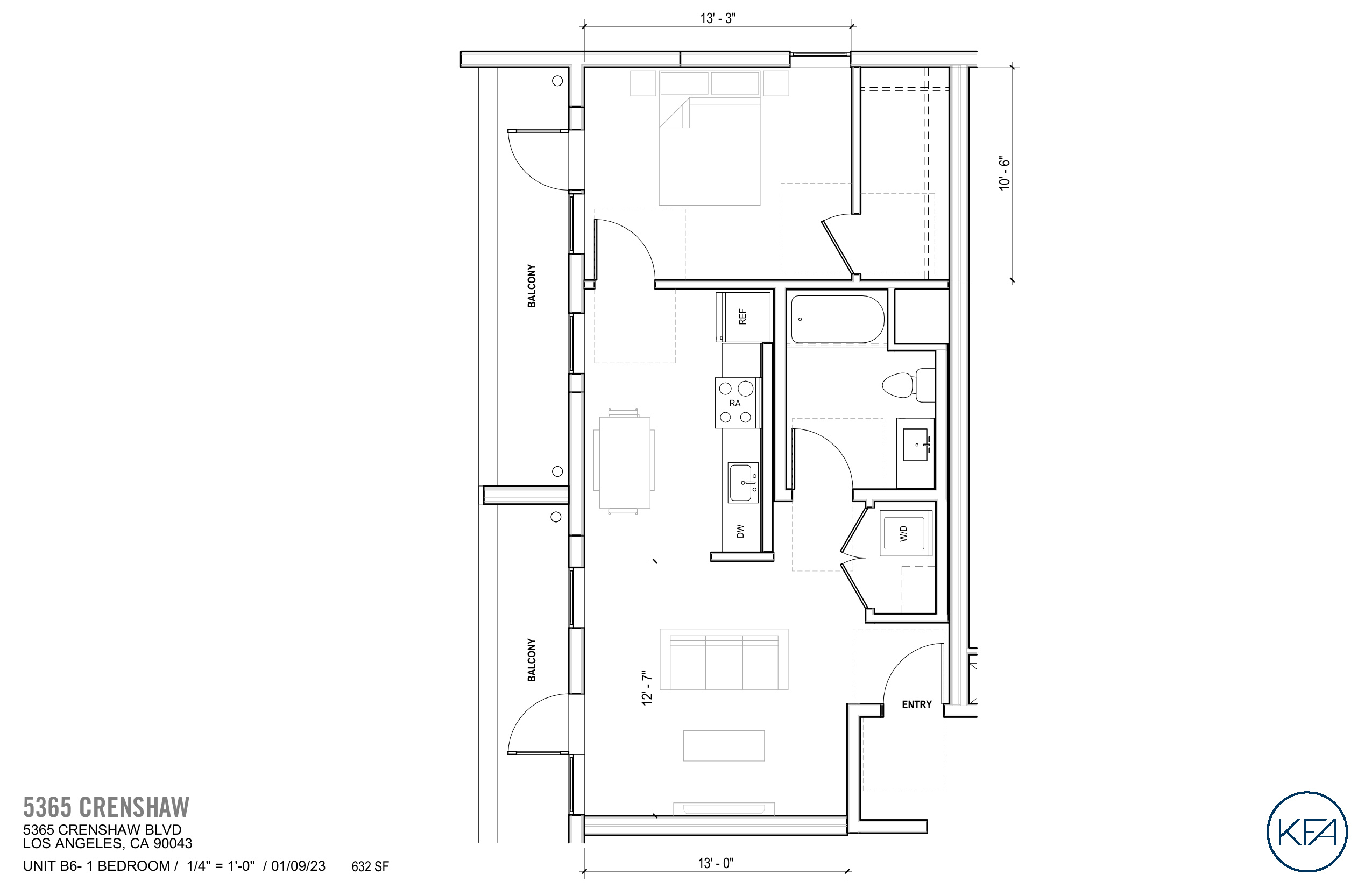
One-Bedrooms
630 – 734 sq ft
7
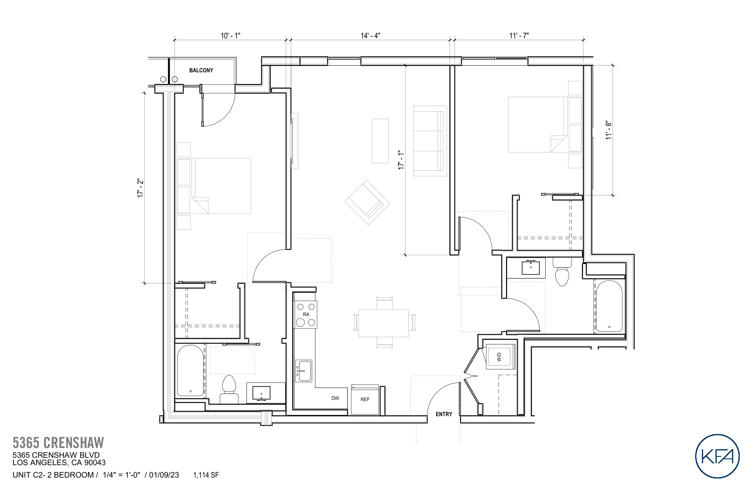
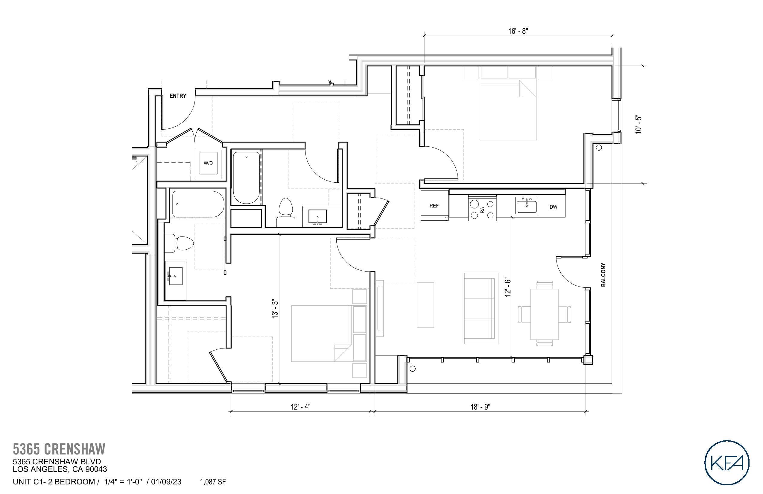
Two-Bedrooms
845 – 1,129 sq ft
1
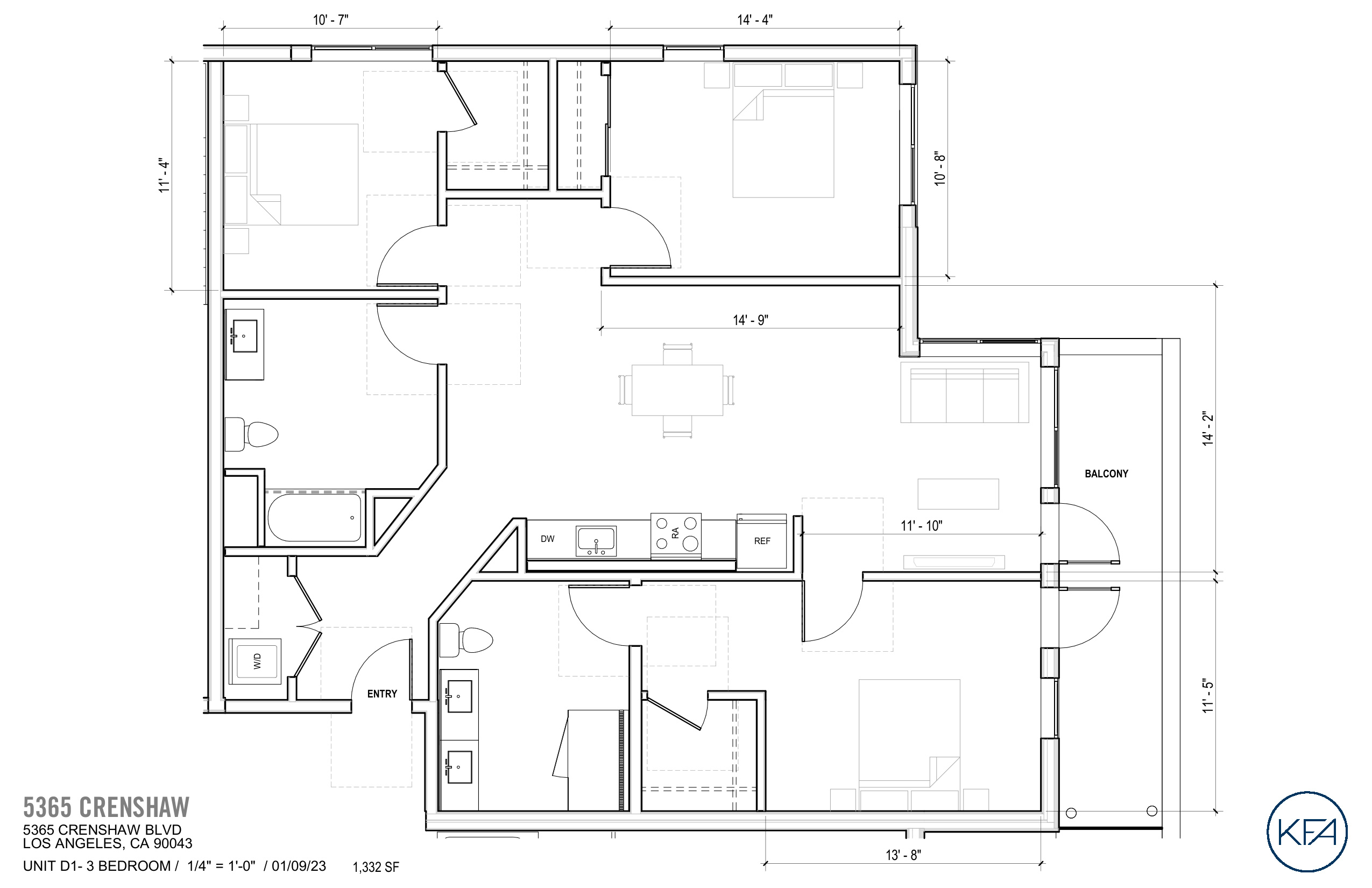
Three-Bedroom
1,332 sq ft
Interactive Building Map

Explore Units by Floor & Availability

Browse available units interactively — filter by floor, plan type, and availability status.

Interactive Sitemap — Launching with Pre-Leasing

Powered by Engrain SightMap — our interactive unit map will show real-time availability by floor. Coming soon.

Contact Leasing for Current Availability
Plan A1 — Studio, 425 SF floor plan
Studio

Plan A1

Sq Ft425
Bath1
BalconyYes

Efficient studio with open kitchen, full bath, in-unit W/D, and private balcony access. Ideal for urban professionals.

Inquire
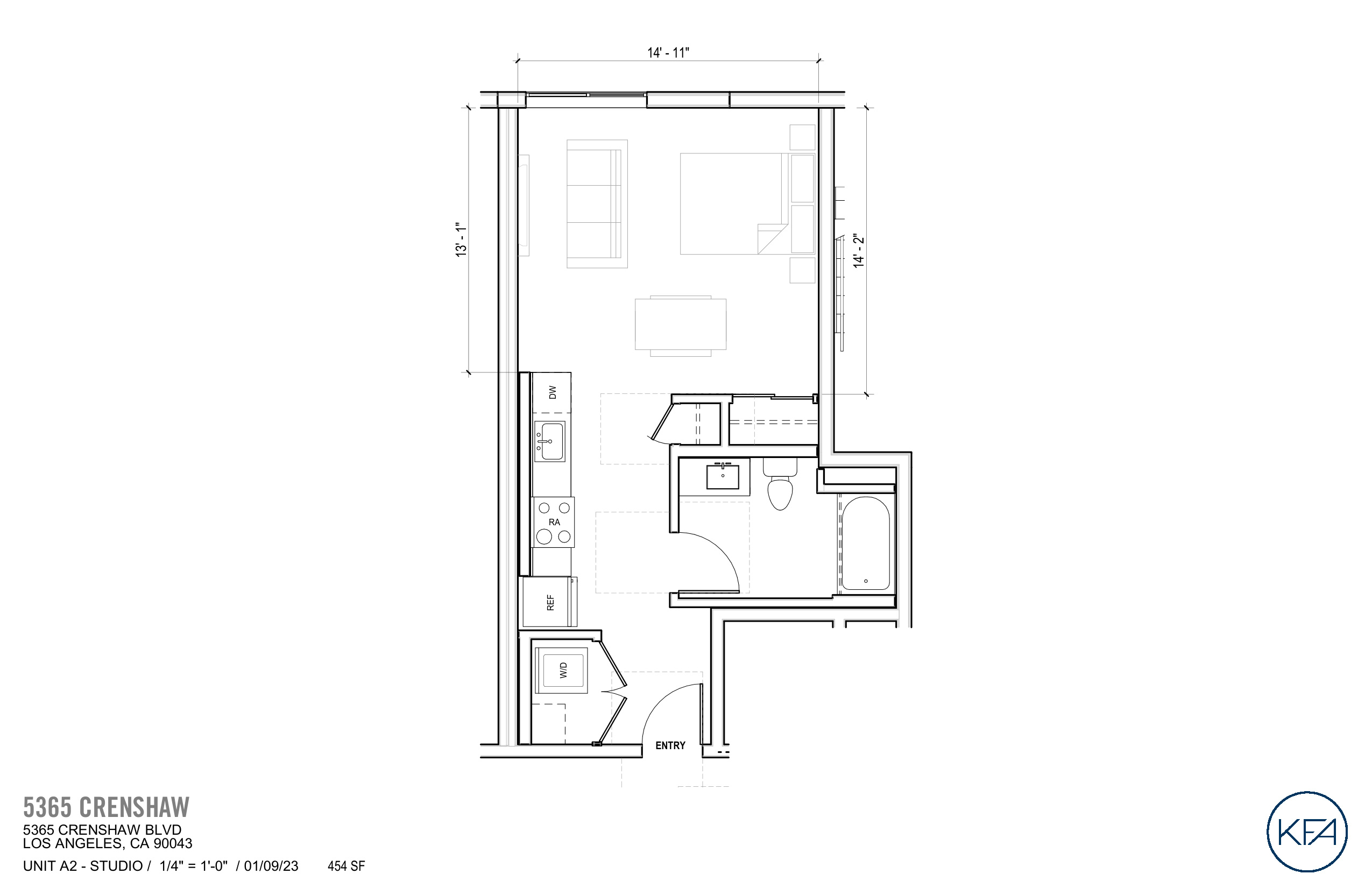
Plan A2 — Studio, 454 SF floor plan
Studio

Plan A2

Sq Ft454
Bath1
Balcony

Open studio with side-entry layout, full bath, and in-unit W/D. One of the larger studio configurations.

Inquire
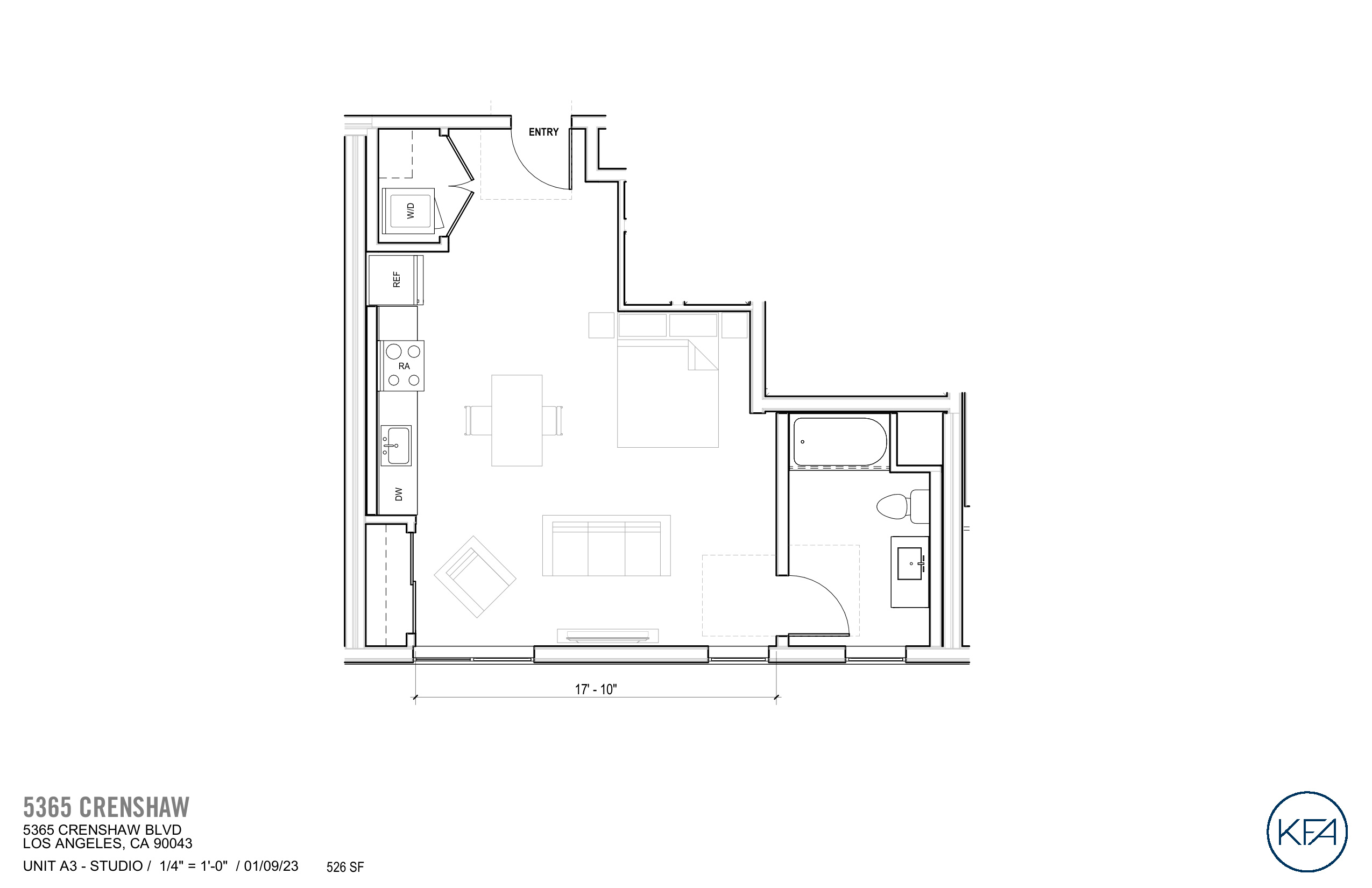
Plan A3 — Studio, 526 SF floor plan
Studio

Plan A3

Sq Ft526
Bath1
Balcony

The largest studio plan — an L-shaped layout with generous living/dining area, full kitchen, bath, and in-unit W/D.

Inquire
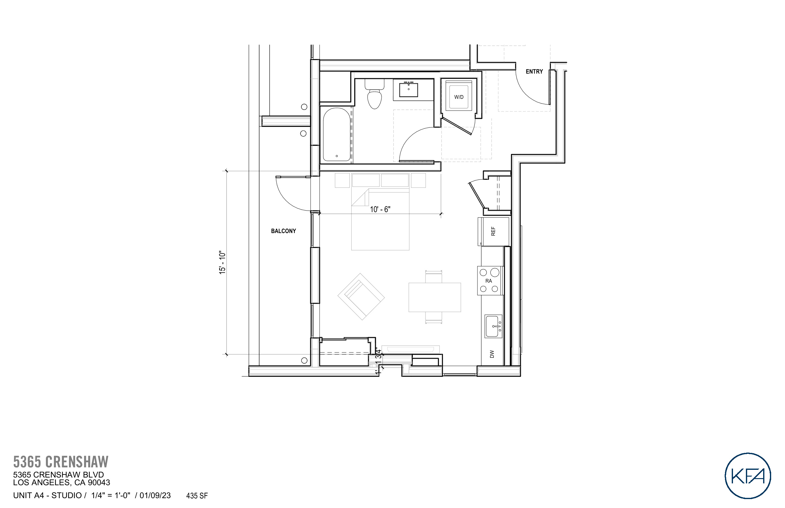
Plan A4 — Studio, 435 SF floor plan
Studio

Plan A4

Sq Ft435
Bath1
BalconyYes

Well-configured studio with full bath, in-unit W/D, and private balcony. Corner-adjacent layout with natural light on two sides.

Inquire
Affordable Studios Available: 6 of 17 studios are income-restricted Very Low Income (VLI) units. Section 8 / Housing Choice Vouchers accepted. Contact leasing for eligibility →
Inclusive Community

Affordable Housing at The Clark

The Clark on 54th includes 10 income-restricted units reserved for Very Low Income (VLI) households — 6 studios, 3 one-bedrooms, and 1 two-bedroom. All affordable units accept Housing Choice Vouchers (Section 8 / HACLA).

Eligibility is based on household income relative to the Area Median Income (AMI) for Los Angeles County. Contact our leasing team to learn about income limits, the application process, and waitlist status.

Contact Leasing for Eligibility Info
Pre-Leasing Now Open

Ready to Choose Your Home?

Contact our leasing team to check availability, ask questions, or schedule a private tour of The Clark on 54th.

Check Availability Schedule a Tour